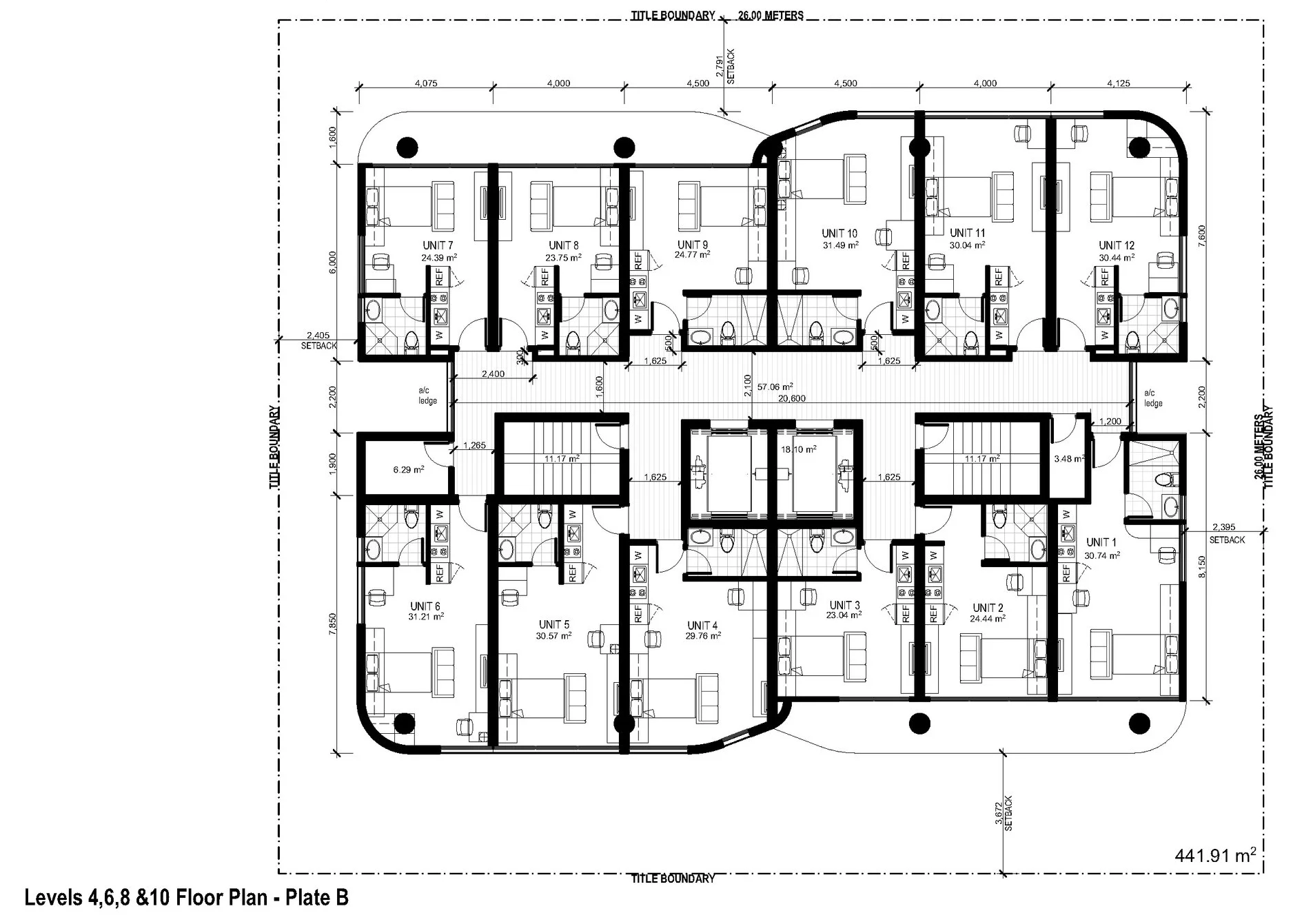
Makati West Inn Hotel
Manila, Philippines
Located in the desirable location of Makati, this 11-storey hotel features 111 rooms and user amenities such as rooftop deck, restaurant, cafe, gymnasium and expansive landscaping. Designed to provide guests with a calming and relaxing retreat from the busy Metro Manila outside, the architecture takes inspiration from the modernist movement while softening this style with lush greenery and secluded semi-public open spaces.

 
             
             
            